Last week Akhila gave me a tricycle tour of her crib.

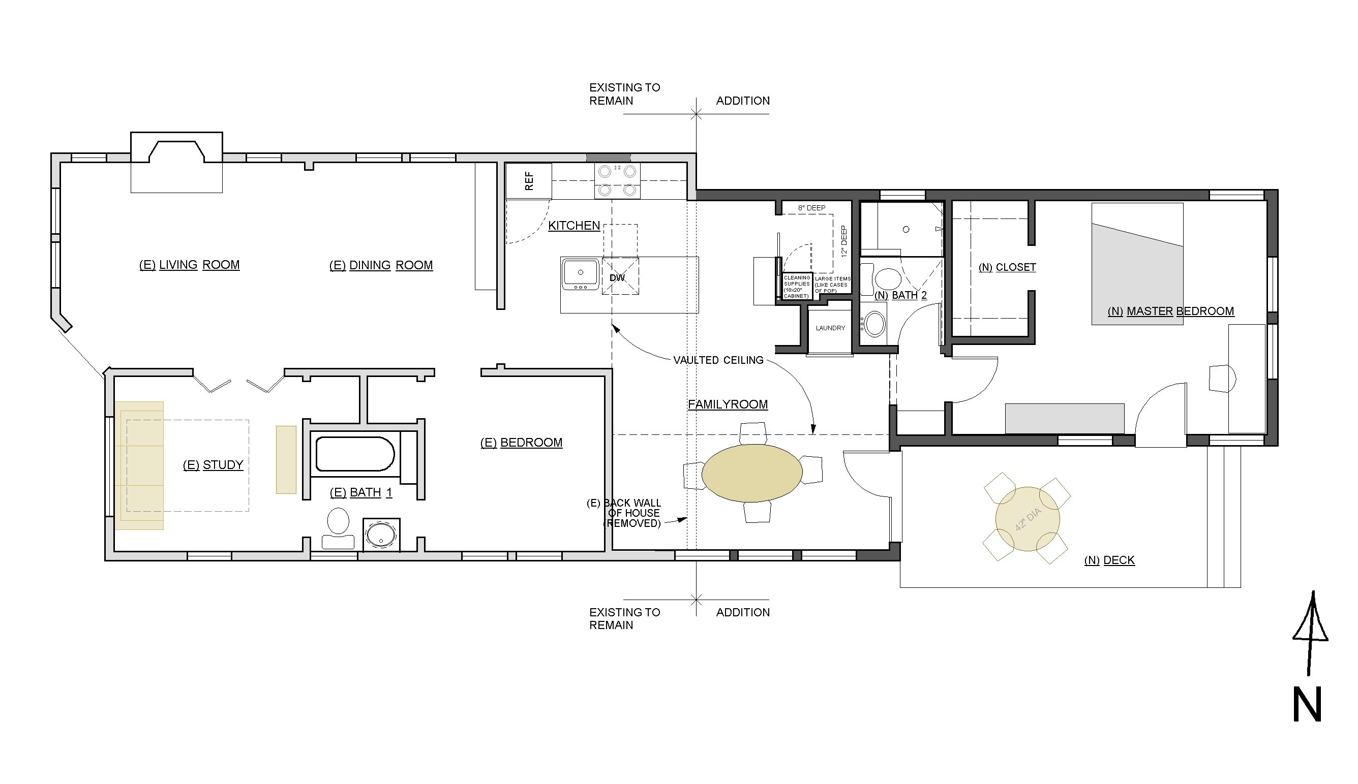
She recently commissioned deedsdesign for an addition including a master suite, expanded kitchen, and family room. Popping up the roof just a few feet allowed for a vaulted ceiling and high windows over the kitchen and an attic loft over the master. The kitchen is on the north side, so the high south windows provide southern sunshine while leaving room for enough cabinets on the north wall. (click on the thumbnails to see enlarged drawings)


The dining room gets a lot of southern sunshine and has french doors leading to the deck.



The Lapeyre stairs provide easy access to the loft above. We enclosed the loft with low walls to hide any boxes stored up there, but added open railings for the last 18″ or so. This way the required 42″ tall “guards” don’t seem so tall and a bit more light circulates.

I didn’t get any photos of the loft itself, but it has built-in shelving and a fir plywood floor, finished with polyurethane. (As you can see the project isn’t quite finished yet)
The homeowner waited for me below while I toured the loft area.



Read Full Post »