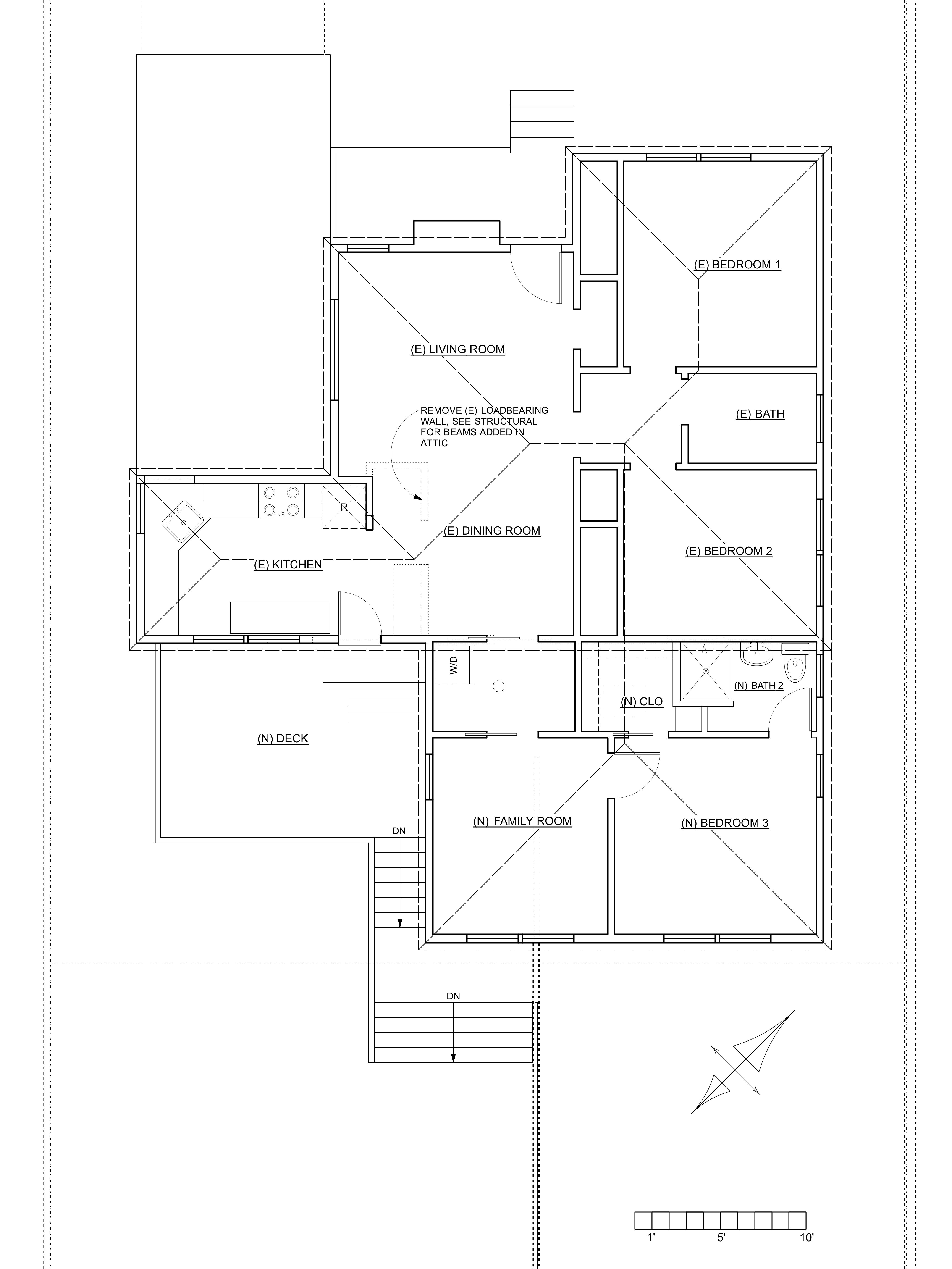
Sometimes the job calls for a very simple addition – bedroom, bathroom, laundry room, and family room all in less than 500 SF, plus a new deck on the south side. and energy efficiency upgrades throughout.

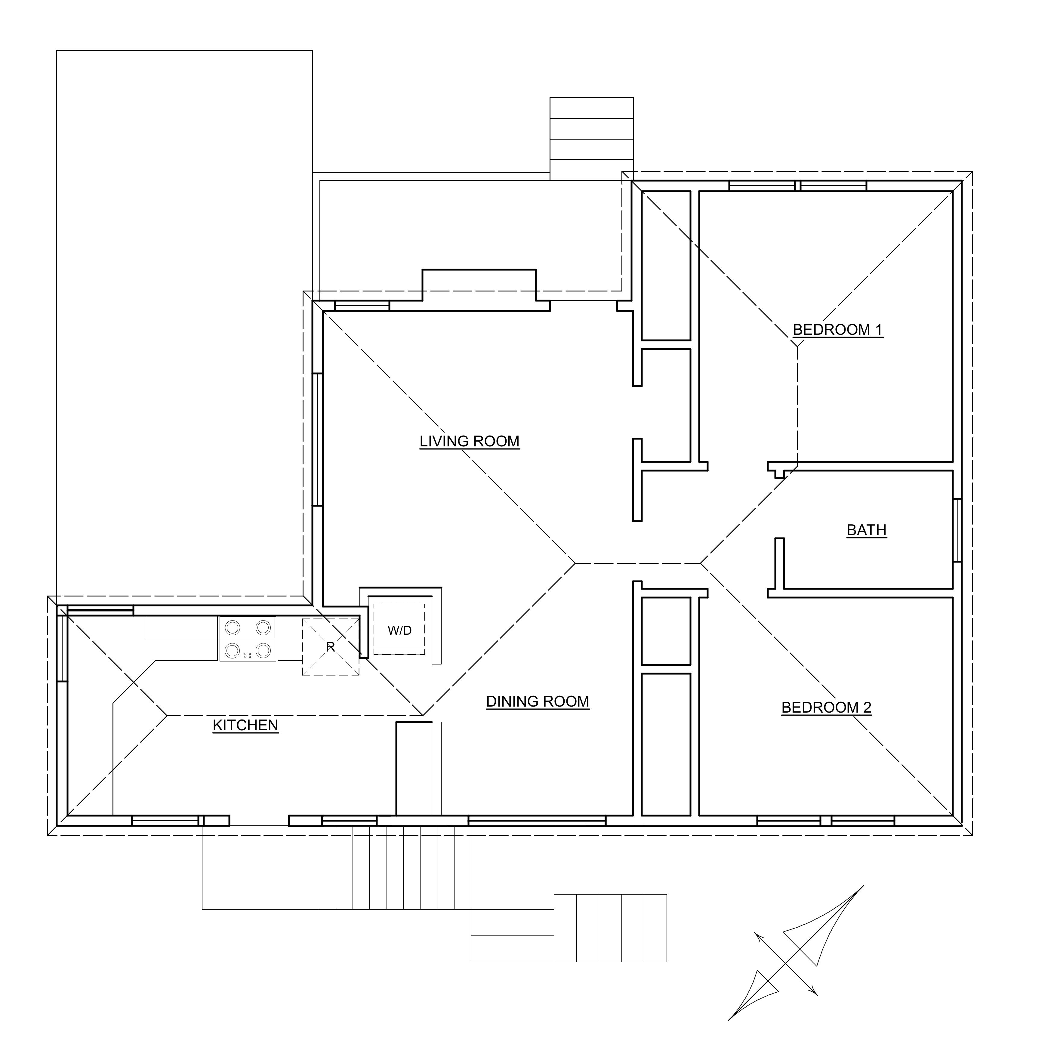
Existing Floor Plan

New Floor Plan
The roofline dictated the easiest place for the addition and the owners preferred a small master bedroom and a small study/ family room rather than a large bedroom. Adding a deck to the south off the kitchen and dining room seemed like an obvious way to fill in the corner (facing due south.) The fact that it has walls on two sides adds a bit of shelter from the wind.


The owners selected locally crafted light fixtures from Metro Lighting on San Pablo and many LED lights for the project.
Canivet Construction built the project on time and on budget (about 230/SF plus fixtures that the owner bought themselves.)
Read Full Post »