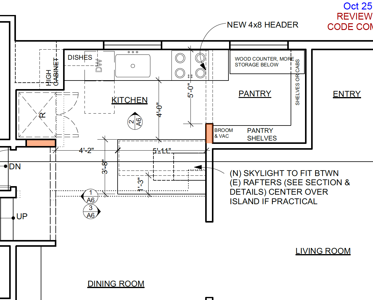
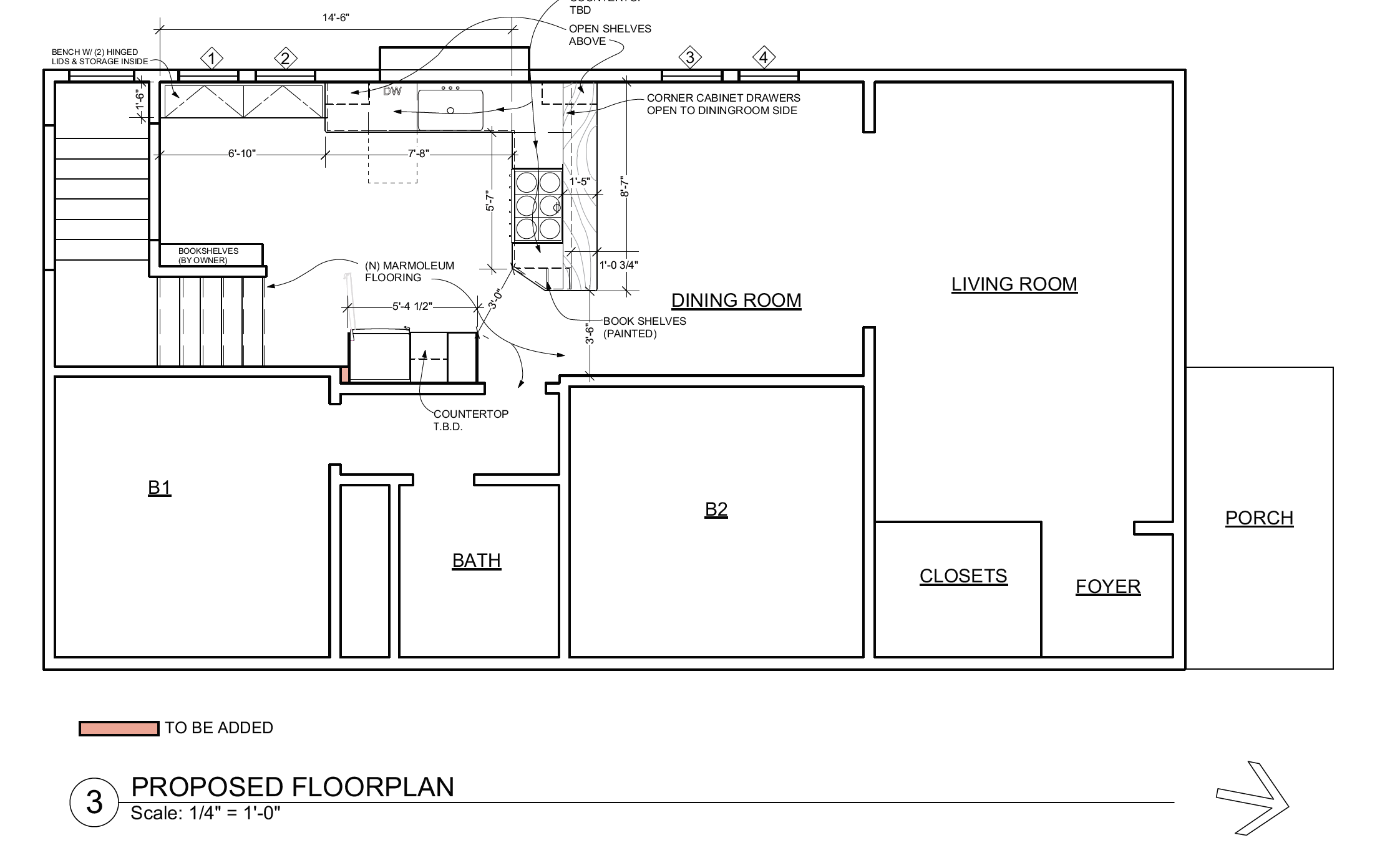
This was a very typical job here in Berkeley. So many older houses have strange, bad additions at the back of the house. Perhaps when they were built people still had garbage dumps in their backyards and had no interest in connecting their living space to the yard. These guys had a badly built 1950s era closet tacked on to the back of their kitchen that contained the laundry and a bunch of other stuff. We moved the laundry and all the storage to the middle of the house and moved the kitchen to the back, adding a dining nook and a half bath and a very small extension to the back bedroom.





The owner is still finishing up details like the nook and the pantry so I will hopefully have one more update on this project.









































































































