Photo credit – Nancy Kalter-Dills
Posts Tagged ‘bathroom’
Small Addition for a Woman and her Ficus
Posted in Design Projects, tagged bathroom, Berkeley, Ficus, garden, houses, process, small addition on November 2, 2013| 1 Comment »
This small addition is a spa-like bathroom designed to be more accommodating to a person growing older. My client also wanted space for plants in the room, including her large ficus plant that was outgrowing her house. They are getting close to finishing the project, but I took some photos of the almost finished interior. Most of the interior design elements were chosen by the client…but deedsdesign guided the project in subtle ways.
Some of the collaborators:
Richard Pollack Tile, Peter Renoir Plumbing, Semolina Design (Provided and fabricated the Richlite remnant), Angress Construction

Peter Renoir Plumbing (Blake and Modesto) Finishing the Plumbing Installation – Blue Richlite Countertop is a remnant fabricated by Semolina Design.

Cut-out Pulls
Posted in Design Projects, Found Objects, Information, tagged bathroom, cabinets, cut-out pulls, details, holes, interiors, kitchen, patterns, utilitarian, value on September 23, 2013| Leave a Comment »
I have always liked this simple and affordable way to open cabinet drawers. This is a bathroom cabinet for a project here in Berkeley, CA.
Remodelista just posted a collection of some other nice examples (follow the link)
UL Listed Light Fixture Research
Posted in Design Projects, Information, tagged bathroom, code, lighting design on September 20, 2013| Leave a Comment »
My client would like a surface mounted track light over her bathroom vanity. I wanted certainty that code would allow a fixture rated only for dry locations in a bathroom. I found this article written by Mark Ode, a staff engineering associate at Underwriters Laboratory Inc on the website for the UL Company.
According to Mark, a dry location luminaire must be installed in a location that is not normally subjected to dampness but may be subjected to temporary dampness. With the proper ventilation, above a bathroom vanity fits this qualification. Inside the shower of course, where water can easily splash on a fixture, a fixture must be wet rated.
His article also explains the difference between wet, damp, and dry UL ratings, as well as a few less common ratings for light fixtures.
Simple Bathroom Design – Berkeley City Club by Julia Morgan
Posted in Found Objects, tagged bathroom, Julia Morgan, lighting design, tile, utilitarian, value, wood on April 9, 2013| Leave a Comment »
Something to be said for keeping it simple.
- One bare lightbulb in the middle of the ceiling for light
- Painted wood stall partitions
- Nice tile floor
- Painted wood accessories
Basement upgrade in the Berkeley Hills
Posted in Design Projects, tagged bathroom, Berkeley, houses, lighting design on October 24, 2012| 2 Comments »
I just stopped by to have a peek at this almost finished project near Tilden Park. The owner still needs to finish moving in, but you can get an idea despite the blank walls.
Canivet Construction is the builder.
- Upstairs bedroom hallway before remodel
- Hallway opened to stairs and skylight added over the stairs
- Before
- Before
- Before
- looking into the new bathroom
- The new bathroom with custom cabinet and trough sink
- Nursery with baby
- big shower with hospital style curtain
- Lots of space in the linen cabinet
- linen cabinet with doors closed
- sketch of built-ins
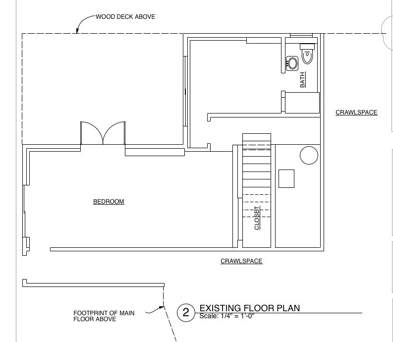
- Existing Floor Plan (lower level)
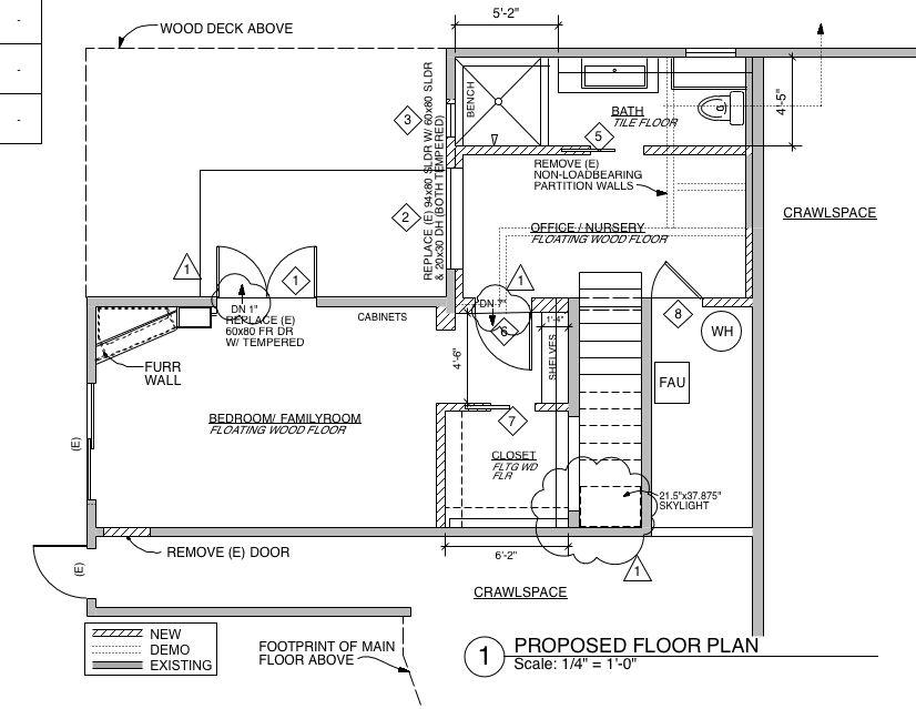
- New Floor Plan (lower level)
Fancy & Sparkly & Shimmery
Posted in Found Objects, tagged bathroom, desert architecture, Las Vegas, patterns, sparkle on May 11, 2012| 4 Comments »
I met up with an old friend in Las Vegas last week. Her employer always puts her up in very nice hotels. I enjoy seeing the details of the rooms and lobbies. This time it was The Cosmopolitan, one of the newer hotels on the strip. Here is a photo of the west tower only. I like the of blue linear lights on the façade. There are also big private balconies attached to most of the rooms.
Here are three photos of the hotel room. Nice how the vanity and tub area is open to the room, making the space feel bigger.
The next few photos are all taken on the main floor – casino, bars, and lobby. It is quite spectacular really, but it is the opposite of restrained. Everything shimmers and sparkles and there is a dazzling array of patterns, lights, mirrors, and colors. The aura throughout is opulence and extravagance. It felt strange to walk these halls in flip flops and cotton. Diamonds and pearls would be right at home. Sequins and rhinestones would fit in too.
Final Details in a New Master Suite
Posted in Design Projects, tagged bathroom, Berkeley, cabinets, color, houses, paint, remodeling on April 29, 2012| 5 Comments »
- Stainless steel support brackets that doubles as a towel bar
- Linen cabinet underway
- Choosing colors
The fun of remodeling your house!
Posted in Found Objects, tagged bathroom, Brooklyn, fun during construction, humor, process, remodeling on March 22, 2012| 1 Comment »
My friend Jenee just sent me this picture. She is remodeling her 1860’s row house in Brooklyn, NY. Some people love the construction process – bare studs, uncovering 100+ years of layers, camping out in the city, and unexpected fun like using this toilet. Some people would rather just have the job done.
Electrical Timers
Posted in Found Objects, tagged bathroom, energy efficiency, gadgets, green on March 21, 2012| Leave a Comment »
It is a good idea to put your bathroom fan on a timer so that you can set the fan to turn off in 1 minute or 30 minutes or anywhere in between. This way you get the damaging moisture out of the house without forgetting and leaving the fan on all day.
This is an elegant product from Lutron – clean looking with a sparkle of tiny lights….but it might be hard for farsighted people to read and it seems a bit complicated for what it does.
This one by Leviton has a simpler design and looks easier for clumsy fingers to operate. I think it could lose the “min.” and just have the numbers, but perhaps then it would perplex first time users for a few seconds.
This old-fashioned spring-wound timer from Intermatic that probably makes a clicking sound as it winds down. …but its operation is very obvious.
I will report in after I test my choice, the Leviton.
Shimmery Glass Tiled Walls with Moroccan Tile Floor
Posted in Found Objects, tagged bathroom, tile on October 3, 2011| 2 Comments »
Emma Lee Photograph via Remodelista


























































