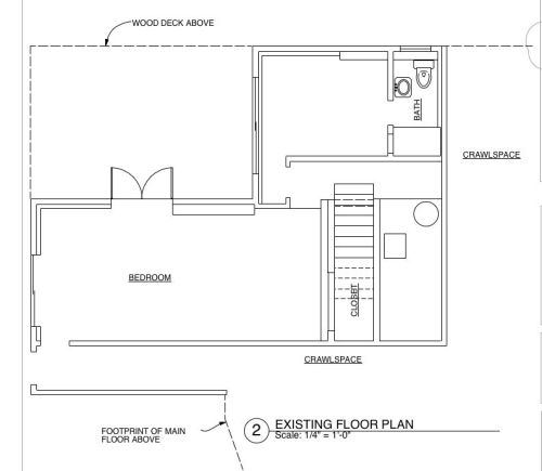
Existing Floor Plan (lower level)
Basement upgrade in the Berkeley Hills » existing floor plan
This site uses Akismet to reduce spam. Learn how your comment data is processed.
- accessory dwelling unit acoustics addition additions ADU Albany aluminum angles appleply ash bathroom Berkeley birds boxes Brooklyn buildings on the water cabin cabinets cedar children color concrete construction process copper cottage curiosities curves decks decoration desert architecture details Detroit dog doorways El Cerrito energy efficiency Fairfax fence fibercement fir fire resistant construction framing fun furniture Garage garden glass tile green green building handrail historical styles holes house houses house surgery humor indoor-outdoor interiors isba John Mcbride Julia Morgan kitchen landscape LED light lighting lighting design McBride Construction metal minimalism modern new materials New York Oak Oakland paint painted plywood pantry paperstone passive house passive solar patterns plants plywood poet's corner Point Richmond process railings rainscreen recycled redwood remodel remodelling restaurant Richmond Rockridge roof rustic salvaged San Francisco San Mateo shou sugi ban simple skylight small buildings small spaces solar electricity sparkle stained glass steel storage Strawbale structure stucco subway tile tile tiny house trim turquoise utilitarian utility value vaulted ceiling victorian walnut water management whimsy windows wood zinc
-
link to RSS Feed




Leave a comment