Posts Tagged ‘value’
New Skylights with Beams in Hallway & Stairwell Bring Light to Two Floors and Many Rooms Brightening the Entire House
Posted in Design Projects, tagged hallways, skylights, value on June 3, 2014| 1 Comment »
Small addition in South Berkeley yields a second bedroom, parlor, and a big family room connected to the back yard
Posted in Design Projects, tagged Berkeley, houses, small buildings, value on June 1, 2014| Leave a Comment »
These are just snapshots – client is not fully moved in – but they are very happy with the remodel, as am I. (Thanks Berkeley Craftsmen) The basic idea was to add a bedroom and improve the street presence. In addition to adding a bedroom we gained a small parlor or office and relocated the main living space to the back with a nice connection to the garden.
Martha Stewart at deedsdesign
Posted in Design Projects, tagged appleply, Berkeley, kitchen, patterns, plywood, rustic, sailboat hardware, salvaged, value on May 7, 2014| 2 Comments »
I took this photo a while back when I installed my blue powdercoated steel Ikea cart in its spot. I was very excited because it was a perfect fit and made use of an underutilized space in my kitchen. It was also very affordable. You can also see my nifty reuse of sailboat rigging (cleat, block, and line) to make an adjustable countertop. The diamond cabinet is also from Ikea but the drawer faces were custom made by me out of fir plywood and white paint. The coordinated geometric pattern dish towel was also from Ikea, but hand dyed with tea, coffee, and beets to get rid of the bright white background. The mini wedgewood range is at least 50 years old and works great with style.
House Surgery
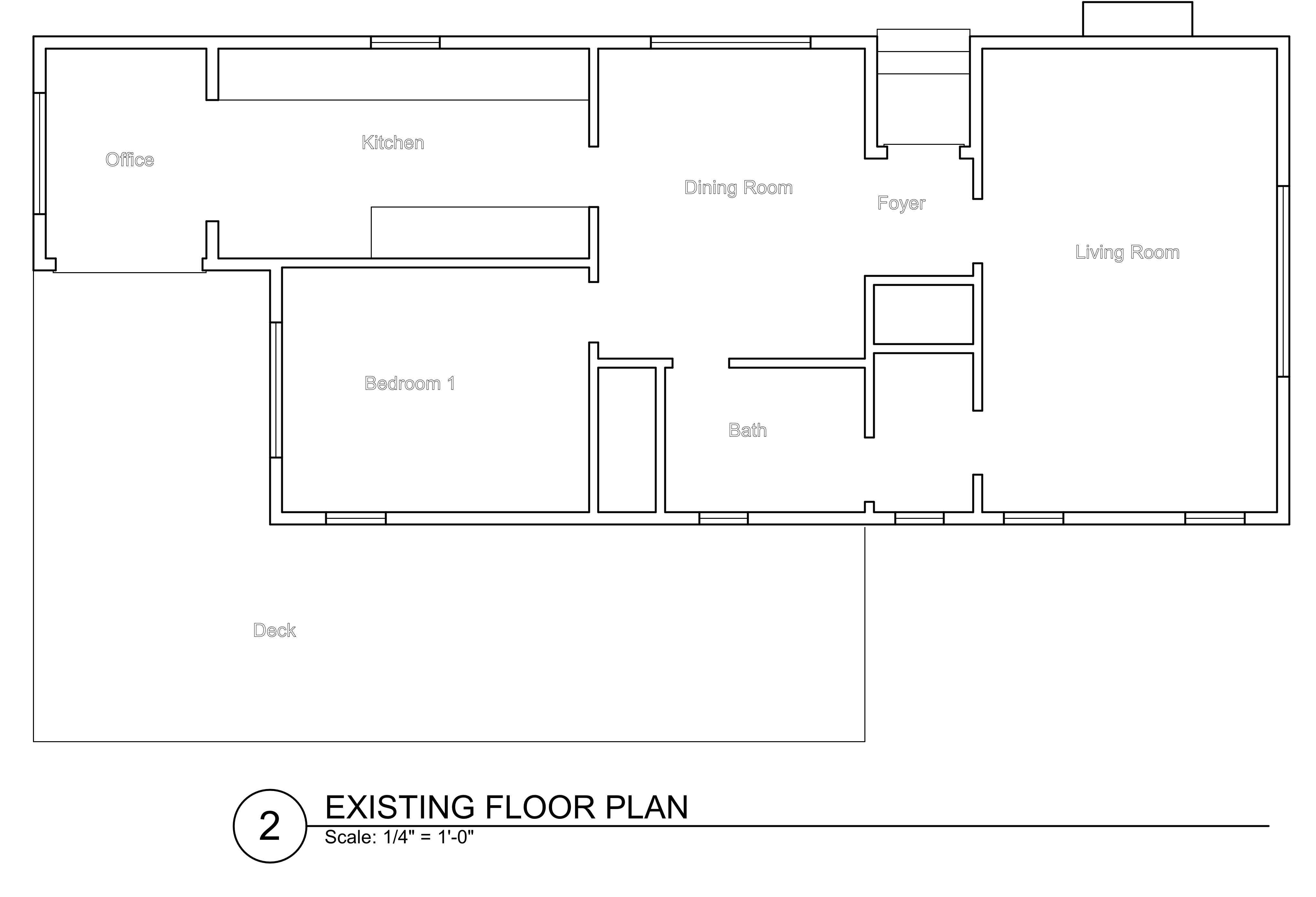
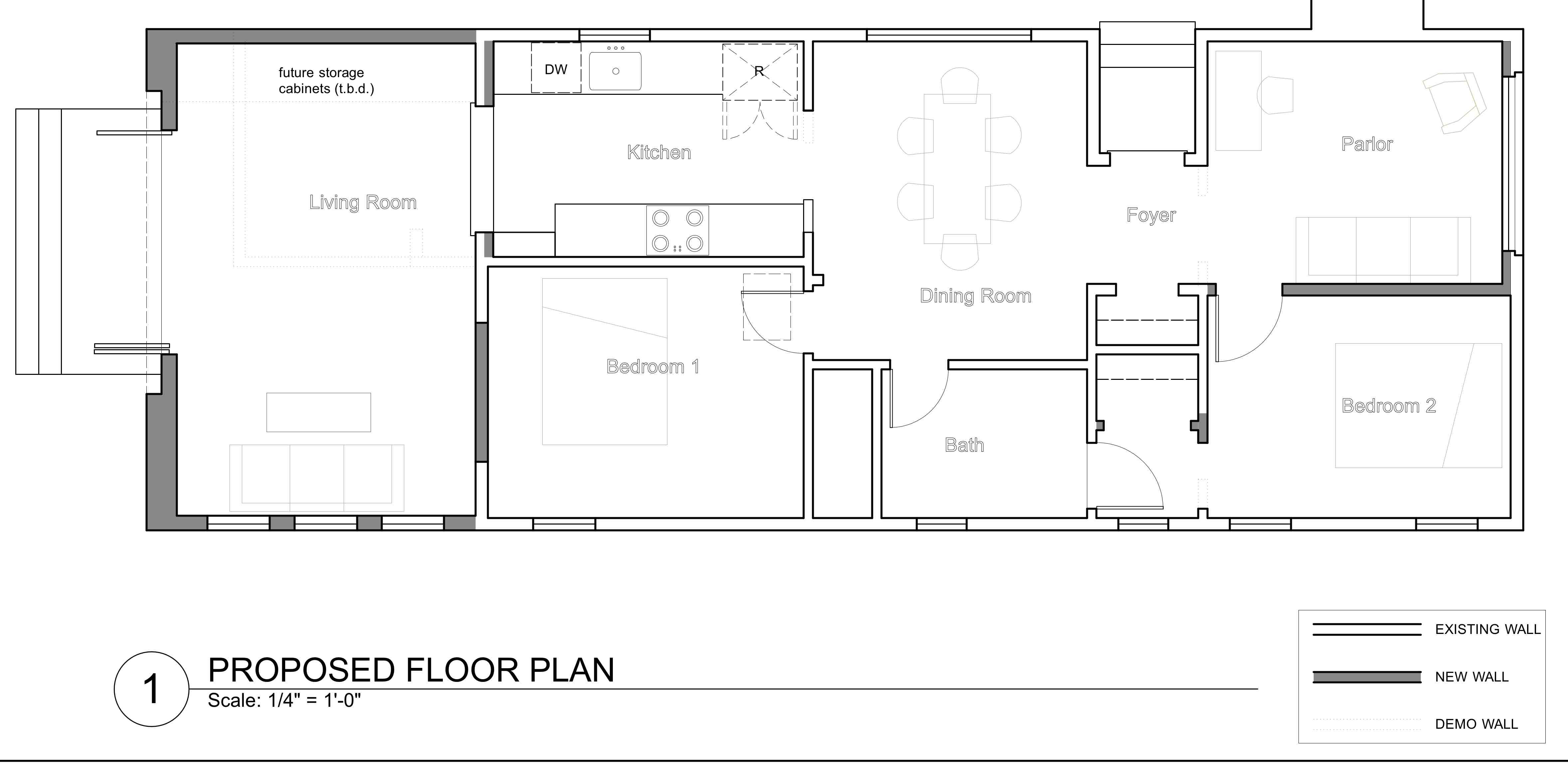
Posted in Design Projects, tagged floorplans, house surgeon, house surgery, houses, interiors, kitchen, remodelling, small spaces, value on February 19, 2014| Leave a Comment »
Many houses have floor plans that don’t work very well. In the case of this project, the first problem is a nice living room disconnected from the rest of the house. (You have to go through the vestibule to get to the living room and the vestibule is not very big, especially if you include a coat tree and shoe storage. When I arrived and saw the space it also became clear that the kitchen/ diningroom connection could also be improved, as well as kitchen storage and counter space.
The budget isn’t grand, but a lot can be gained with a few small changes.
We will close the opening between vestibule and dining room and open a bigger one directly from dining room to living room. Then we will eliminate a big chunk of hallway between kitchen and dining and use this space to expand the kitchen counter and add some dearly needed kitchen storage.
Someday things might shift back the other way, but for now, most people seem to prefer informal dining that is very connected to the kitchen.
Heating with Compost Pile
Posted in Information, tagged energy efficiency, garden, green, utilitarian, value on September 29, 2013| Leave a Comment »
A simple diagram taken from this site….full of a lot of similar concepts for sustainable living.
Cut-out Pulls
Posted in Design Projects, Found Objects, Information, tagged bathroom, cabinets, cut-out pulls, details, holes, interiors, kitchen, patterns, utilitarian, value on September 23, 2013| Leave a Comment »
I have always liked this simple and affordable way to open cabinet drawers. This is a bathroom cabinet for a project here in Berkeley, CA.
Remodelista just posted a collection of some other nice examples (follow the link)
White Painted Sheetrock with Exposed Fir Beams and Light Makes a Nice Space
Posted in Found Objects, tagged light, natural light, passive solar, value on April 12, 2013| 1 Comment »
I was visiting my carpenter friend last week for lunch and got to see this project before the client finished moving in. The architect made a lot of nice moves in renovating this old house. He vaulted the ceilings, opened up the space, and connected better to the backyard, Sunlight comes in through a few well placed skylights, big south-facing french doors, and a high window in the hall. I am sitting in the front room and I can see the back yard at the end of the hallway. The hallway has to slice through the house at an angle to make this happen. Unusual geometries result from the angled hallway, but since they result from a purposeful move they do not seem contrived.
Simple Bathroom Design – Berkeley City Club by Julia Morgan
Posted in Found Objects, tagged bathroom, Julia Morgan, lighting design, tile, utilitarian, value, wood on April 9, 2013| Leave a Comment »
Something to be said for keeping it simple.
- One bare lightbulb in the middle of the ceiling for light
- Painted wood stall partitions
- Nice tile floor
- Painted wood accessories
Hose for Handrail
Posted in Found Objects, tagged handrail, hose, rubber, value on April 3, 2013| Leave a Comment »
Check out this innovative and easy to install handrail I saw at a Berkeley furniture showroom:

A Review of Good House Cheap House
Posted in Found Objects, Information, tagged houses, utilitarian, value on March 26, 2013| Leave a Comment »
A friend recently recommended this book:
Good House Cheap House – An Adventure in Creating and Extraordinary Home at an Everyday Price by Kira Obolensky.
The main premise of the book is that you can build your dream house for below market rate prices through creativity, salvaged materials, and hard work. I will start by saying that I like the idea and I really like a most of the houses that she features. I also agree with Kira that the architect should not be eliminated as a cost saving measure. But now I will pick apart the strategies that she puts forward.
1) Salvaged materials – Generally this is not a viable or significant cost saving measure for most people. It is hard to find and store quantities of building materials. Using used windows doesn’t make sense in most climates because used windows are mostly not up to current energy efficiency standards. Using used framing materials often requires that they be re-certified to prove they can still perform. Additionally, Labor costs in the United States are usually a bigger share of the budget than the materials….so it doesn’t make sense from a financial standpoint to have paid labor removing nails and cleaning up salvaged materials. That said, if you do have a place to store materials out of the weather and access to good salvage yards, craigslist, and other places to buy used materials, money can be saved. There is often also character and charm in using salvaged materials..and of course it can be more environmentally sound. The same is true of saving parts of an old building rather than tearing it down and starting from scratch. Unfortunately, it is often cheaper to start from scratch.
2) Creativity – Kira shows many examples of ingenuity and unconventional uses of materials. Honestly, for most people with a hired contractor, I can’t imagine that this saves any money. The idea would have to be communicated from architect to client to builder, or from client to architect to builder or maybe just from client to builder and this often is a challenge. Frequently new creative ideas scare builders who have to put a price tag on things ahead of time. Many of the houses in Kira’s book are architects’ own houses. Its much easier to be creative on your own house. You can experiment and don’t have to spend time creating drawings, models, or other tools to convince the client of the idea. These architects probably did some of the building themselves, eliminating communication altogether. That said, much of the construction budget goes to finish materials. If you like the aesthetic of plywood as a finish floor or various sheet goods rather than tile for your shower and bathroom floor, curtains instead of doors for the shower and some closets, then you can save money.
It is wonderful to create something beautiful through creative use of basic materials. In my mind this is way cooler than making something beautiful by spending money on expensive tiles, carpets, and other architectural elements.
3) Hard work – In my opinion, this is the only sure winner, but it also has to be smart work. Experienced builders and architects and engineers are often more efficient and have tricks of the trade. Doing your own work, design or construction, can sometimes lead to disappointing results. The hardwork that makes the most sense in my opinion is spending the time to carefully select your architect and builder, spending the time to have your needs and desires and budget thought through, assisting the architect where possible and being available and giving schematic plans sufficient thought and consideration and getting preliminary pricing before moving along to the more detailed construction documents. It is often a good idea to pick a builder early on so the architect and builder can work together for an efficient collaboration. During construction there is plenty to do. Some builders are open to clients helping with the work, others typically bigger companies, want no part of this. I have had several projects where a small builder was happy to have the owner operate as a carpenter’s assistant. This is a great way to learn and get your hands dirty while having an expert on hand to guide the project. Home owners also frequently help with clean up and dump runs – labor intensive and low skilled parts of the job. Painting is often done by the home owners, but it is often more efficient to paint before finish electrical and plumbing, so it might be inconvenient for the contractor to wait while the homeowner does their own painting. The most important thing that a homeowner can do to make the job more efficient is to be available and spend the time to make decisions as quickly as possible. If every door knob has not been selected prior to construction with the architect, these things will have to be selected during construction. There are a lot of small decisions like this and it is crucial that they don’t cause delays. It is even more important that you don’t change your mind about certain decisions. changing things late in the game can be very expensive. Beyond making decisions, keeping your eye on things is always helpful. Even an untrained eye can detect issues and help things go more smoothly.
4) Simplicity – A cost saving measure that Kira does not mention is simplicity. For example: Most kitchens these days have recessed lights, under-cabinet lights and a decorative light in the middle of the room. If you have high enough ceilings to make it work, stick with one big light in the middle of the room. (if your ceilings are not high, you might not get enough light on the work surfaces.) Every switch and fixture costs money. Complicated roof lines can be very expensive in labor and materials.
5) Lifecycle costs – It is also important to consider the lifetime costs of the building. Incandescent bulbs might be cheaper, but LED bulbs will save you money in the long run. Durable materials will last longer. Money spent on extra insulation will usually save money down the road.
Plumbing Pipes
Posted in Found Objects, tagged Alvar Aalto, Brooklyn, color, exposed pipes, industrial chic, interiors, New York, painted pipes, pipes, plumbing, restaurant, utilitarian, value, whimsy on November 25, 2012| Leave a Comment »
This cafe in Brooklyn, NY has done a good job of turning what would usually be considered a highly undesirable feature into what almost might be considered an asset. (Sorry that all I have are quick snap shots with my phone.)
































