
kids enjoying the roofdeck
This Poets Corner remodel with small addition turned out great. (Thanks in part to the good taste of the owners and the skill of Coleman Building.) Nancy Kalter came with me to the house warming party and took some house in action shots. It was afternoon on a very sunny day.
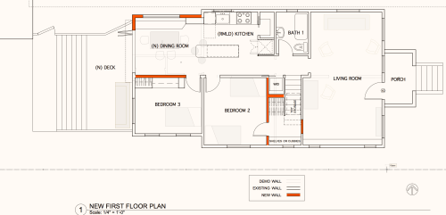
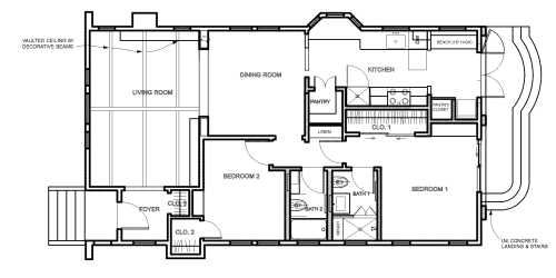
First here is the before and after first floor plan. (Roof deck remodel upstairs (plan not shown) is big enough for the whole family to sleep out under the stars and also a vegetable garden!)


- more livingroom
- livingroom again
- cozy corner
- Livingroom
- looking through from livingroom
- looking through the house
- the centrally located laundry
- kitchen
- kitchen
- kitchen
- kitchen
- Pantry!
- inside the pantry
- island seating
- kitchen
- sunny back deck
- double decker
- master bedroom with kids
- looking out from masterbedroom
- Expansive roofdeck
- kids enjoying the roofdeck
- kids enjoying the roofdeck
- looking down from the roof deck
- big closet in middle bedroom
- big closet in middle bedroom
- Big closet in middle bedroom
- Apple-ply closet in back bedroom (and orange curtains for the moodlighting)
Here is a small collection of before shots:
- looking through to the laundry
- kitchen
- kitchen
- from the back landing
- back of house
- back door






















































