My clients sent me a few photos last week!

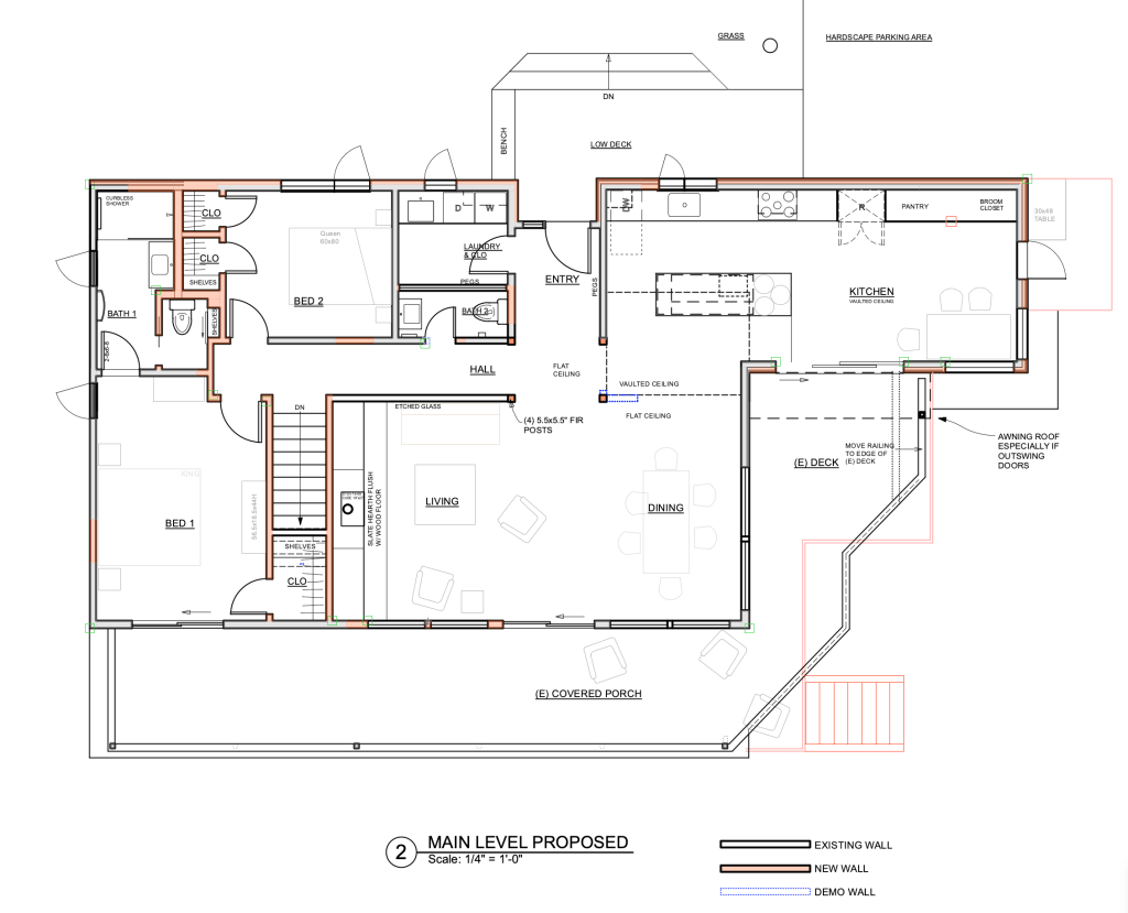
The ceiling transitions from vaulted in the kitchen to flat elsewhere, and the wall between living and hallway stops short of the ceiling to allow for privacy and natural light beyond the wall. (Most of the windows are on the south side)

Here are a few more photos: 1) Lower floor TV room – nice the way the TV disappears into the dark wall. 2) Primary bath curbless shower 3) Burnt orange Powder room with interior window to adjacent skylight 4) Looking in from the front door 5) Dining room 6) Kitchen – Kitchen features paperstone countertops and dark cabinets…a cantilevered island seating area and the best view in the house.






The initial concept was to remodel and possibly expand the kitchen, relocate the stairs down, fix the funky half wall between living room and hall….improve the primary suite, but we ended up doing a fair bit more. The sunroom was a bit too sunny with all those skylights, and it didn’t have any insulation in the roof, so we made some big changes there. (switched to high south windows instead of the skylights)
The big updates to energy efficiency are not evident in the photos.
There was a lot of good teamwork on this project between the very involved owners, the local builder and architect and myself.
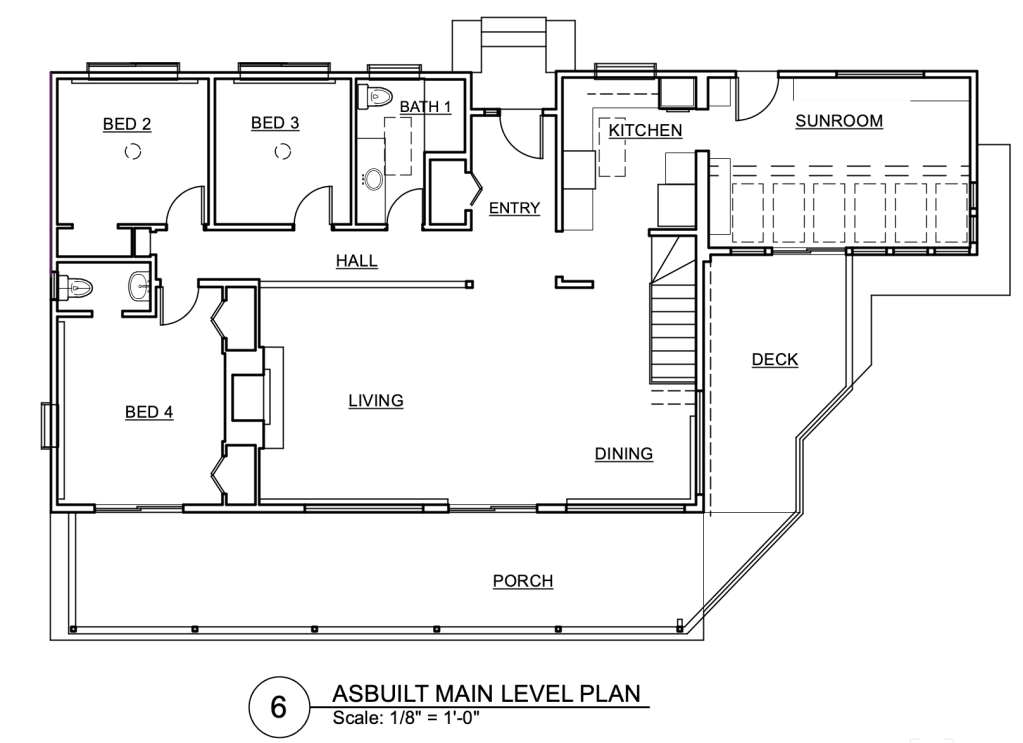
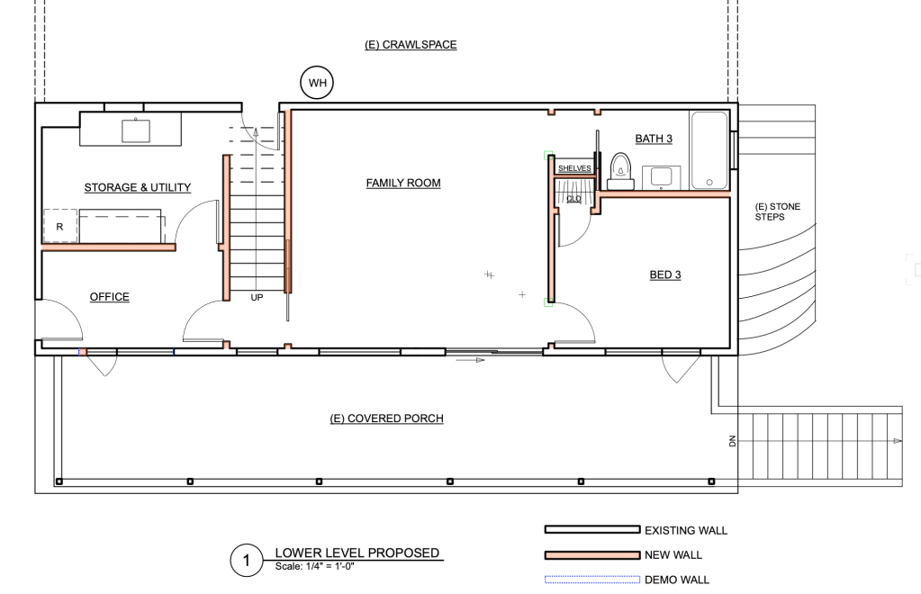
Below are some before and after plans, then a few before photos.








Leave a comment