Last year I redesigned this kitchen for an artist in Piedmont. She, of course, had a lot of design input including the colorful paint choices, the glass pendant lights, recycled glass & concrete countertops, and bright colored marmoleum flooring
Deedsdesign measured the existing space and worked out the most efficient layout for the new powder room, laundry, and kitchen. A wall was removed, opening the kitchen to the dining room, space under the stairs was utilized for a walk-in pantry, and an island with a curved ash counter for eating breakfast with the newspaper was added. The lighting design includes LED recessed cans over the sink and stove, LED undercabinet and overcabinet lighting, and colorful pendants. Full extension drawers in the lower cabinets provide convenient storage for most things, including recycling, trash, and compost. A few bamboo upper cabinets and open shelves provide enough space for dishes.
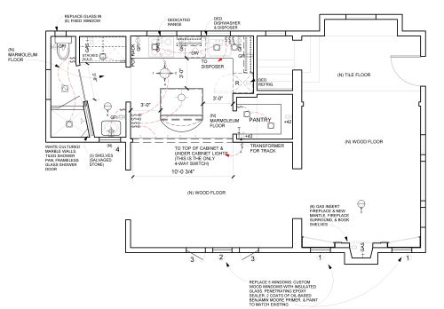
In addition to the kitchen, we revamped the old brick fireplace,
adding tile, a gas insert a wood mantle, and angled bamboo bookshelves on either side. I wish I had pictures of this part. Here are some drawings:
Construction by Canivet Construction, Cabinets by Eby Construction.








Hi. Love this kitchen! I was wondering if you remember what color Marmoleum you used. I just purchased a roll of Henna for my kitchen remodel and got “cold feet” about using it. But this looks similar and now i’m inspired to go ahead and put it down. If you could remember, I would totally appreciate it!
Hi Kellybird
I would have to ask the owner of the kitchen for you. she picked out the Marmoleum herself. It might take a week to get a reply, but I am happy to inquire. -Sarah